アーバンビュー宇品フェアコーストシティウイング 3LDK



  1. お知らせ
  2. 売買物件情報
  3. アーバンビュー宇品フェアコーストシティウイング 3LDK

アーバンビュー宇品フェアコーストシティウイング 3LDK

所在地:広島市南区宇品西五丁目12番1号
構造:鉄筋コンクリート造17階建ての11階部分
建築年月:2008年2月(築17年)

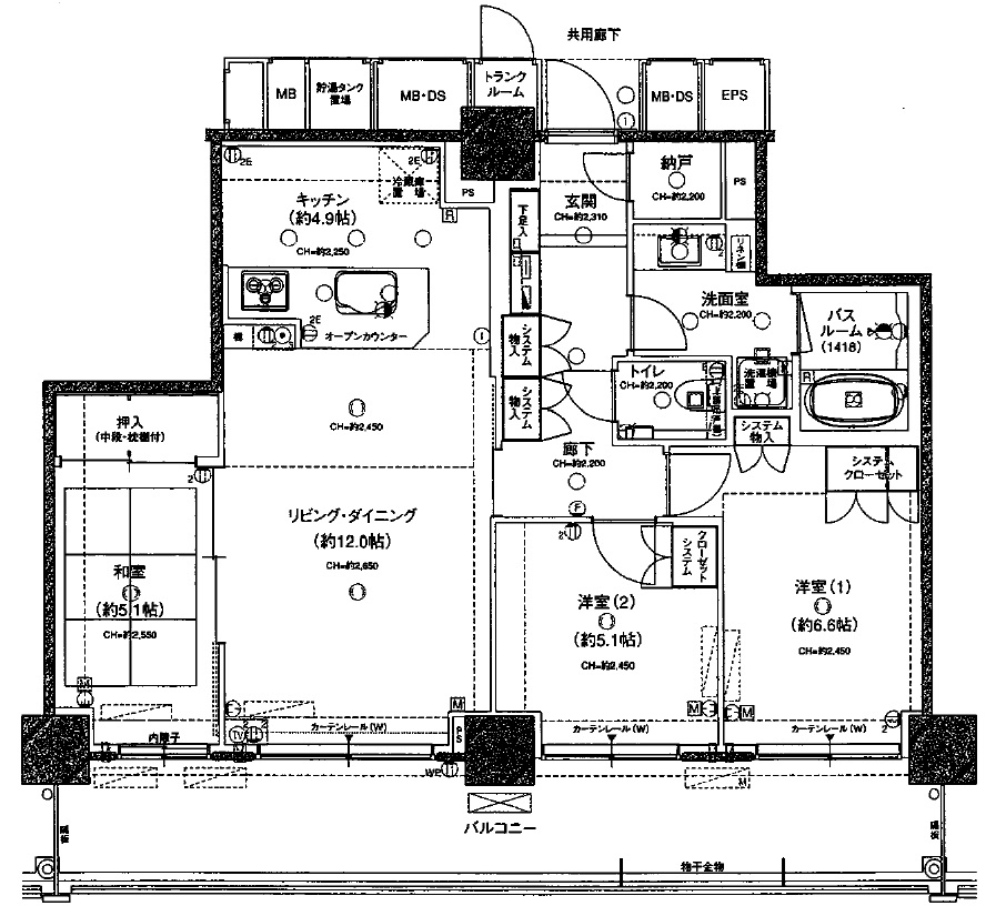
間取:3LDK+N(納戸)/専有面積:壁芯82.27㎡(バルコニー19.55㎡)
価格:3,580万円/管理費・修繕積立金:9,300円・17,660円/駐車場:8,000円(機械式)
管理:(株)穴吹コミュニティ/取引態様:専任媒介

当物件は、広島駅や紙屋町へのアクセスに優れた利便性の高いエリアにあります。
広島港や海沿いの公園が近く、開放的な環境と暮らしやすい都市機能を兼ね備えています。

周辺にはゆめタウン・フレスタ・ドラッグストア・飲食店など、日常生活に必要な商業施設が充実しています。
また、広島電鉄「宇品西」電停やバス停が徒歩圏内にあり、都心へスムーズに移動できます。

全室バルコニーに面す南向きのオーシャンビューの眺望で解放感はもちろん、宇品の花火大会も鑑賞できる魅力と落ち着いた住環境と利便性のバランスが取れた人気物件です。

\ 最新情報をチェック /


コメントを残す

メールアドレスが公開されることはありません。 が付いている欄は必須項目です

PAGE TOP